Opuštěný přístav v izraelském Tel Avivu tak dlouho čekal na své využití, až se dočkal. Architektonické studio Pitsou Kedem Architects dostalo za úkol vytvořit ze zdánlivě odepsaných prostor showroom pro německou firmu bulthaup. Ta se specializuje na interiéry a mezi její nejsilnější parketu patří realizace kuchyní.

Studiu učarovaly přepravní kontejnery před mnichovskou pobočkou bulthaupu, kam jeden z architektů přijel blíže poznat koncept firmy. Před továrnou stálo několik bílých kontejnerů s nábytkem, které se měly rozjet do všech koutů světa. Architekta zaujaly natolik, že si je vyfotil. Utkvěly mu v paměti a když přišlo na řadu řešení stěn v interiéru showroomu, dostaly své slovo: architekti vyzdobily zdi bílými pláty, které byly součástí kontejnerů. Zdobí je logo firmy.

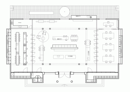
Showroom se rozkládá přes 500 metrů čtverečních a je rozdělen do sekcí. V jedné části se nachází open-plan studio, do kterého každý návštěvník může nahlédnout. V další části se nachází několik kuchyňských pultů, za nimiž se konají kulinářské kurzy.

Pitsou Kedem Architects vytvořili industriální prostor, kterému dominují surové materiály. Neopracované zůstaly betonové zdi a podlaha – ta byla tak dlouho leštěna, až v ní vynikla jednotlivá zrnka štěrku. Industriální symfonii dotváří kovové rezivějící dveře. Použili tedy stejnou taktiku jako u dalších svých projektů.

Řešení interiéru zahrnuje celý koloběh výroby a užití bulthaupu: proces začíná navrhováním designu v kancelářích a pokračuje konstrukcí, již zastupují industriální materiály v interiéru showroomu. Dalším krokem je expedice zboží: tu představují pláty z kontejnerů na zdech. Cílovou rovinkou je využití produktů bulthaupu v praxi – v showroomu tuto misi splňují kurzy vaření.

Pitsou Kedem se vyvarovali kýčovitých detailů a největší ozdobou prostoru se tedy může stát jídlo, které se při kurzech uvaří za kuchyňskými pulty.


Jaký je Váš názor?
Související články

Na návštěvě jako doma
Na prázdninách u Zumthorů
Na pivo s Jeanem Nouvelem
Autor:
Přidejte se k Insidecor komunitě...
Insidecor
Insidecor na Instagramu